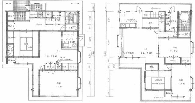
琴田 二世帯住宅の基本情報
- 物件名
- 琴田 二世帯住宅
- 価格
- 2,400万円
- 建物面積
- 201.56㎡
- 土地面積
- 281.65坪(931.08㎡)
- 築年月
- 2001年1月(築25年)
- 総戸数
- -
琴田 二世帯住宅の詳細情報
- 設備条件
-
- 設備(その他)
-
-
-
- 駐車場/月額
- -/-
- 土地権利
- 所有権
- 国土法届出
- 不要
- 用途地域
- 無指定
- 取引態様
- 仲介
- 引渡し
- 即時
琴田 二世帯住宅で募集中の物件
近隣の物件
よく見られている物件
琴田 二世帯住宅
