柏市中原1丁目の中古一戸建の基本情報
- 物件名
- 柏市中原1丁目の中古一戸建
- 価格
- 2,580万円
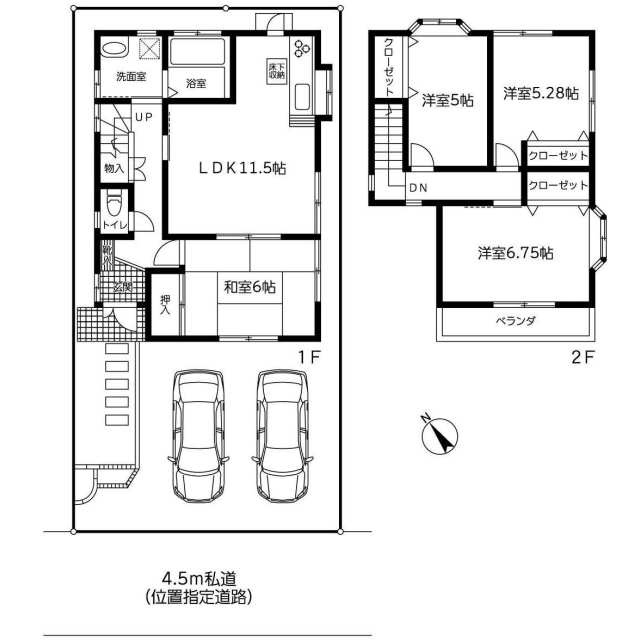
- 建物面積
- 85.29㎡
- 土地面積
- 30.25坪(100.02㎡)
- 築年月
- 2002年3月(築24年)
- 総戸数
- -
柏市中原1丁目の中古一戸建の詳細情報
- 設備条件
-
- 駐車2台可
- 設備(その他)
-
-
-
- 駐車場/月額
- 有/-
- 土地権利
- 所有権
- 国土法届出
- 不要
- 用途地域
- 第一種低層住居専用
- 取引態様
- 仲介
- 引渡し
- 相談
柏市中原1丁目の中古一戸建で募集中の物件
近隣の物件
よく見られている物件
柏市中原1丁目の中古一戸建
